【所在地】神戸市灘区神ノ木通3丁目2-6
【価格】成約御礼(A号地)6,180万円(B号地)6280⇒6,080万円(C号地)
【交通】阪神『大石』駅徒歩11分
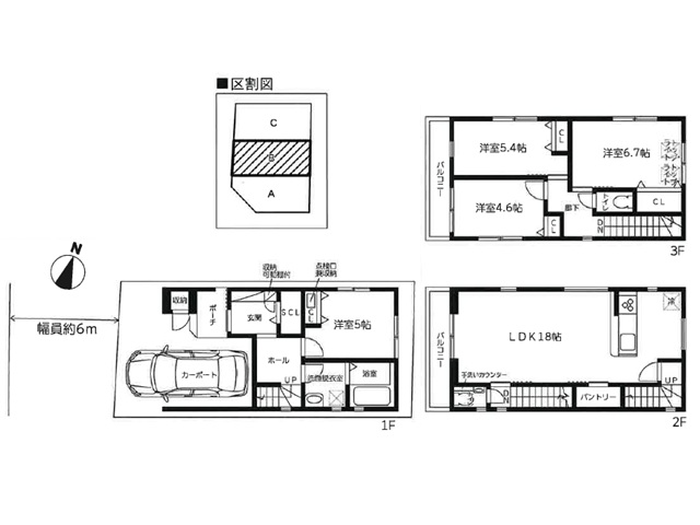
【土地】54.74㎡(B号地)57.20㎡(C号地)【私道】なし
【建物】112.12㎡(B号地)111.62㎡(C号地)
【間取り】4LDK【駐車場】1台【構造】木造3階建
【完成】2026年1月【引渡し】即日
【学校区】灘小学校・原田中学校
【所在地】神戸市灘区神ノ木通3丁目2-6
【価格】成約御礼(A号地)6,180万円(B号地)6280⇒6,080万円(C号地)
【交通】阪神『大石』駅徒歩11分
【土地】54.74㎡(B号地)57.20㎡(C号地)【私道】なし
【建物】112.12㎡(B号地)111.62㎡(C号地)
【間取り】4LDK【駐車場】1台【構造】木造3階建
【完成】2026年1月【引渡し】即日
【学校区】灘小学校・原田中学校